PENN 1
| SPACE AVAILABLE | View Availabilities | |
|---|---|---|
| Availabilities | 26 | 912 — 61,346 |
| Total Building SF: | 2,524,000 | |
Specifications
LOCATION
The Building occupies the area between 33rd and 34th Street and 7th and 8th Avenues.
YEAR BUILT
1972
ARCHITECT
Kahn & Jacobs
RENOVATION
Renovation Completed - 2023
Previous Renovation - 1995
POINTS OF ENTRY
Main entrance on 34th Street
2 entrances on 33rd Street
Entrance on 8th Avenue
Entrance on 7th Avenue
BUILDING SIZE
Approximately 2,524,000 SF
FLOORS
57
FLOOR SIZES
Floor 01: 46,176 SF
Floors 02-06: 80,000 SF
Floors 07-11: 60,000 SF
Floors 12-13: 29,000 SF
Floors 14 54: 35,000 SF
FLOOR LOADS
Floor Loads: 50 lbs per SF
CEILING HEIGHTS
Floor 02-11: 13'-0"
Floors 12: 15'-1.5"
Floors 13-54: 12'-0"
Floor 55: 15'-8"
Floor 56: 12'-3"
Floor 57: 14'-0"
LOADING DOCK
Located on 33rd Street
ELECTRICITY
6 Watts per USF
EMERGENCY LIGHTING AND POWER
A Caterpillar D343 generator is located on the 56th floor. The generator is rated at 344 KVA/275 KW and provides power to all stairwell emergency lighting and fire life safety systems. Multi-tenant floor corridors contain emergency battery back-up fixtures.
ELEVATORS
44 Passenger Cars
2 Freight Cars
HVAC
Monday through Friday 8:00 AM to 6:00 PM
SECURITY
24 hours, 7 days a week, turnstiles with card key access
SUSTAINABILITY
LEED Gold Certification
ENERGY STAR Label
Fitwel v2.1 (MTBB) 2 Stars
BOMA 360 Certified
TELECOM
Verizon, Cogent, MCI/ Verizon Business, TW Telecom, Con Ed, AT&T, TWC, Direct TV, Light Tower, Pilot Fiber
Tenant Profile
office
- Canaccord
- Cisco Systems
- Citigroup
- Dell
- Empire Health
- Fortinet
- Gusto
- Hartford Insurance
- Jacobs Engineering
- Samsung
- United Healthcare
- Wells Fargo
retail
- Amma
- Anita La Mamma Del Gelato
- Avenida
- Bank of America
- Beer Table
- Blue Bottle Coffee
- Blue Ribbon Sushi & Steak
- Boba Lab
- Chick-Fil-A
- Chop't
- Damselfly Flowers
- dock parking
- Dos Toros
- Duane Reade
- Dunkin'
- Gotham News
- H&H Bagels
- Insomnia Cookies
- Le Cafe Coffee
- Leather Spa
- Life Time
- Los Tacos No.1
- Neuhaus Belgian Chocolates
- Office Hours
- Paper Source
- Penn Cellars
- People's United Bank
- Playa Bowls
- Pollo Campero
- Pret A Manger
- QQ Nails & Spa
- Raising Cane's
- Realmuto
- Roberta's
- Rose's Pizza
- Shake Shack
- Skinny Louie
- Starbucks
- Swarovski
- The Landing
- The Rutherford
- Tracks Raw Bar & Grill
- Van Leeuwen
- Wasabi Sushi & Bento
- XWELL
Contacts
Josh Glick
Jared Silverman
Anthony Cugini
Availability
| Floor | Location | SQ FT | Available | Floor Plan | Search Packet ? | |
|---|---|---|---|---|---|---|
|
6th Floor
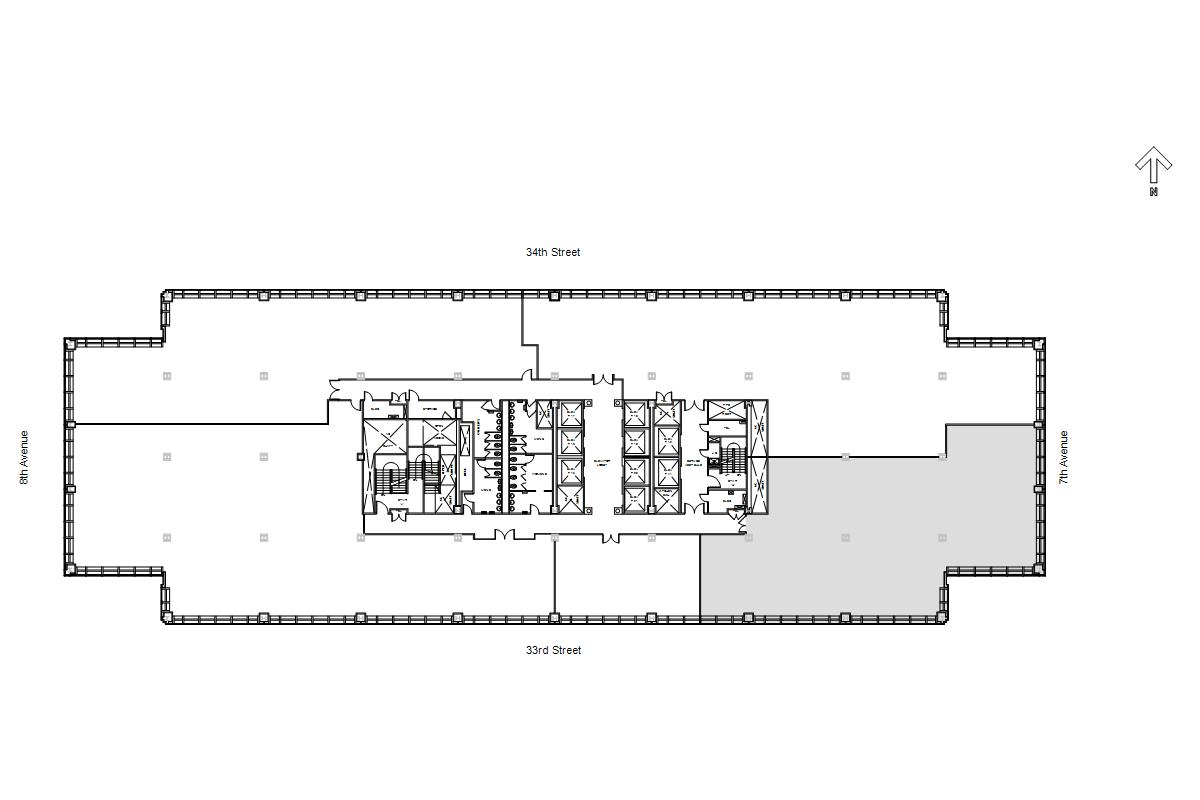
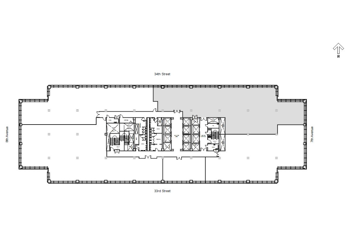
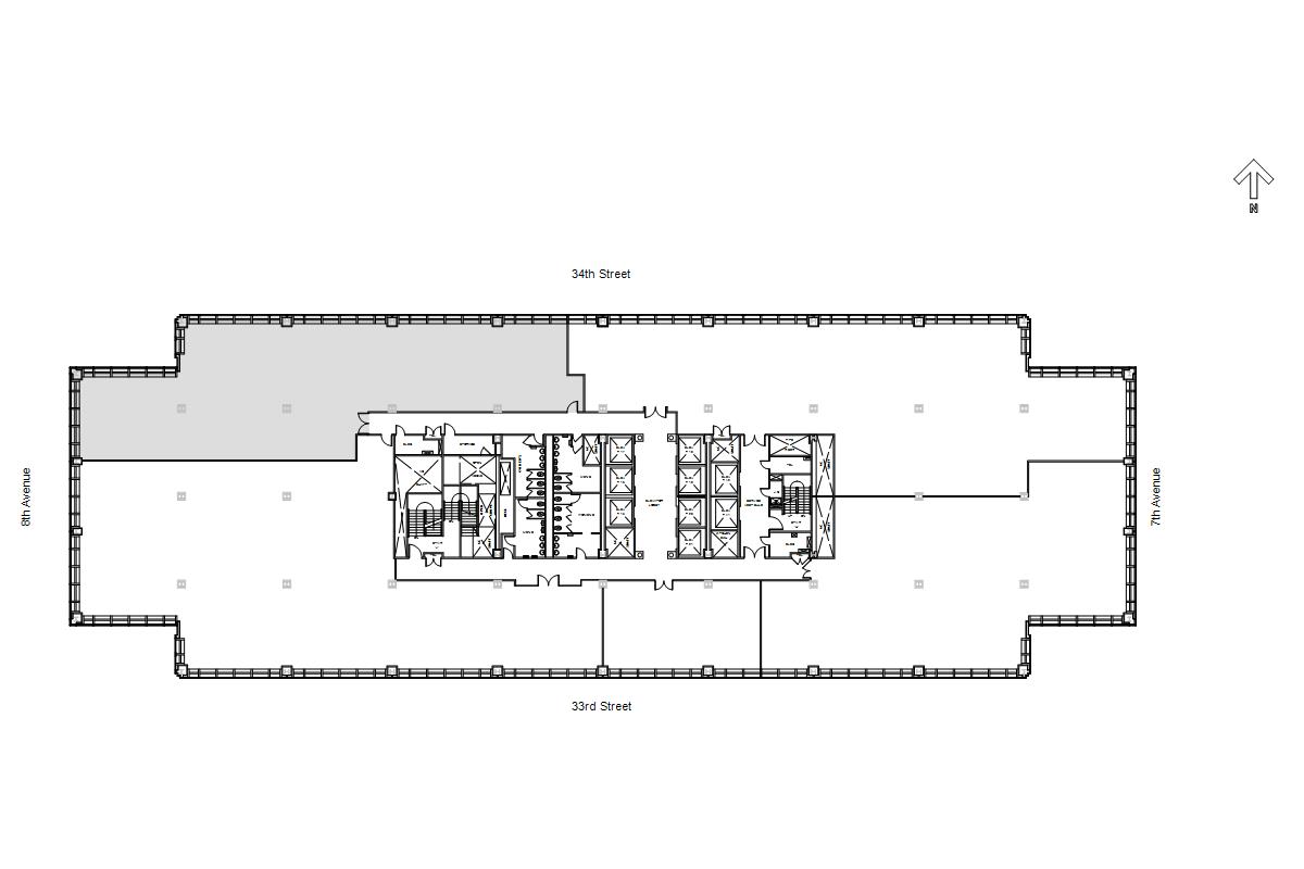
| PARTIAL 6TH FLOOR | 8,696 | Immediately | View | Download |
|
|
|
8th Floor
| ENTIRE 8TH FLOOR | 61,346 | Immediately | View | Download |
|
|
|
14th Floor
| PARTIAL 14TH FLOOR | 1,361 | Immediately | View | Download |
|
|
|
15th Floor
| PARTIAL 15TH FLOOR | 912 | Immediately | View | Download |
|
|
|
16th Floor
| PARTIAL 16TH FLOOR | 2,762 | Immediately | View | Download |
|
|
|
18th Floor
| PARTIAL 18TH FLOOR | 5,537 | Immediately | View | Download |
|
|
|
18th Floor
| PARTIAL 18TH FLOOR | 4,104 | Immediately | View | Download |
|
|
|
22nd Floor
| PARTIAL 22ND FLOOR | 3,470 | 9-1-2026 | View | Download |
|
|
|
31st Floor
| PARTIAL 31ST FLOOR | 17,665 | Immediately | View | Download |
|
|
|
31st Floor
| PARTIAL 31ST FLOOR | 4,734 | Immediately | View | Download |
|
|
|
32nd Floor
| PARTIAL 32ND FLOOR | 24,950 | Immediately | View | Download |
|
|
|
32nd Floor
| PARTIAL 32ND FLOOR | 12,142 | Immediately | View | Download |
|
|
|
32nd Floor
| PARTIAL 32ND FLOOR | 8,114 | Immediately | View | Download |
|
|
|
32nd Floor
| PARTIAL 32ND FLOOR | 4,694 | Immediately | View | Download |
|
|
|
33rd Floor
| PARTIAL 33RD FLOOR | 7,234 | Immediately | View | Download |
|
|
|
39th Floor
| PARTIAL 39TH FLOOR | 3,948 | Immediately | View | Download |
|
|
|
39th Floor
| PARTIAL 39TH FLOOR | 3,075 | Immediately | View | Download |
|
|
|
40th Floor
| PARTIAL 40TH FLOOR | 20,069 | Immediately | View | Download |
|
|
|
42nd Floor
| PARTIAL 42ND FLOOR | 12,315 | Immediately | View | Download |
|
|
|
44th Floor
| PARTIAL 44TH FLOOR | 15,437 | Immediately | View | Download |
|
|
|
47th Floor
| PARTIAL 47TH FLOOR | 24,632 | Immediately | View | Download |
|
|
|
47th Floor
| PARTIAL 47TH FLOOR | 9,392 | Immediately | View | Download |
|
|
|
47th Floor
| PARTIAL 47TH FLOOR | 7,744 | Immediately | View | Download |
|
|
|
47th Floor
| PARTIAL 47TH FLOOR | 7,496 | Immediately | View | Download |
|
|
|
51st Floor
| PARTIAL 51ST FLOOR | 19,004 | Immediately | View | Download |
|
|
|
53rd Floor
| PARTIAL 53RD FLOOR | 2,077 | Immediately | View | Download |
|


