PENN 2
| SPACE AVAILABLE | View Availabilities | |
|---|---|---|
| Availabilities | 16 | 5,070 — 63,180 |
| Total Building SF: | 1,619,000 | |
Specifications
LOCATION
The Building is located on the West side of 7th Avenue between 31st and 33rd Street
YEAR BUILT
1968
ARCHITECT
Charles Luckman Associates
RENOVATION
Renovation Completed - 2023
POINTS OF ENTRY
Main entrance on 7th Avenue
BUILDING SIZE
Approximately 1,619,000 SF
FLOORS
31
FLOOR SIZES
60,000 SF
FLOOR LOADS
50 lbs per SF
CEILING HEIGHTS
11'-6"
LOADING DOCK
Located on 31st Street between 7th and 8th Avenue
ELECTRICITY
6 watts per USF
EMERGENCY LIGHTING AND POWER
150 KVA Emergency Generator
ELEVATORS
22 Passenger Cars
2 Freight Cars
HVAC
Monday through Friday 8:00AM to 6:00PM
SECURITY
24 hours, 7 days a week
SUSTAINABILITY
BOMA 360 Certified
ENERGY STAR Label
TELECOM
Verizon, Cogent, MCI/ Verizon Business, AT&T, TWC, Winstar Communications, Pilot Fiber, Direct TV, XO Communications, Light Tower
Tenant Profile
office
- Madison Square Garden
- Major League Soccer
- UMG Recordings
- Verizon Communications
retail
- JPMorgan Chase Bank
- The Dynamo Room
Contacts
Josh Glick
Jared Silverman
Anthony Cugini
Availability
| Floor | Location | SQ FT | Available | Floor Plan | Search Packet ? | |
|---|---|---|---|---|---|---|
|
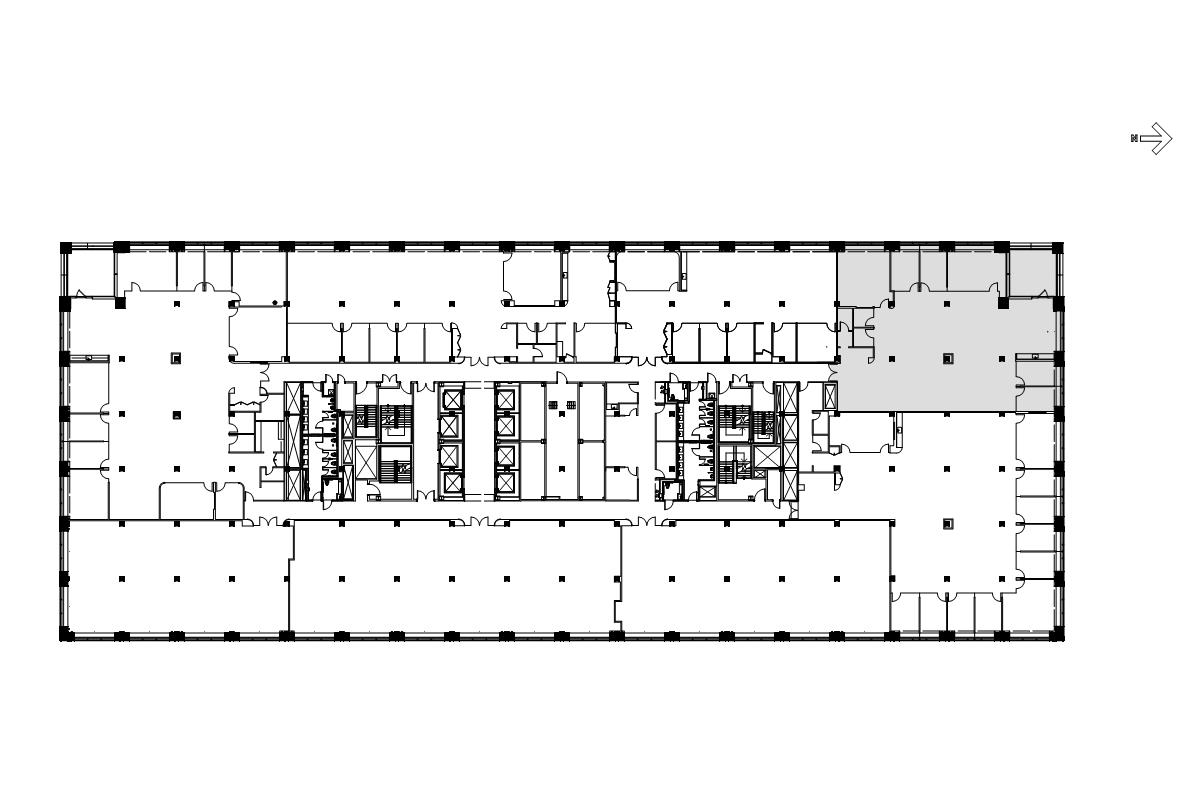
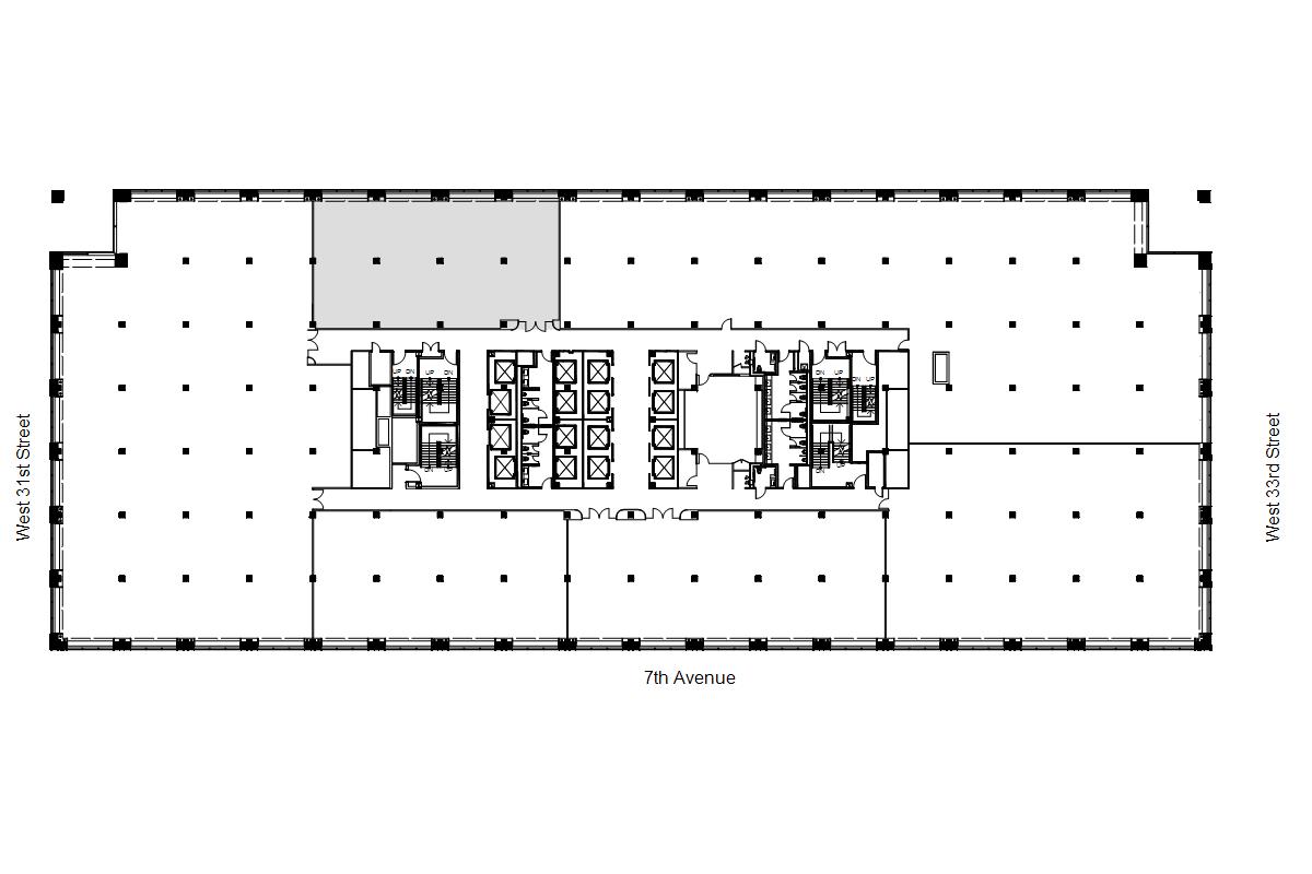
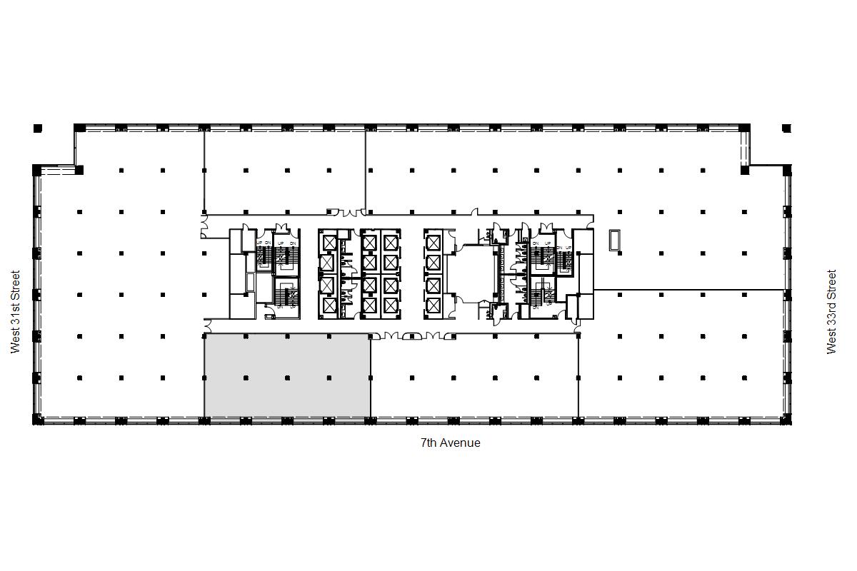
3rd Floor
| PARTIAL 3RD FLOOR | 12,294 | Immediately | View | Download |
|
|
|
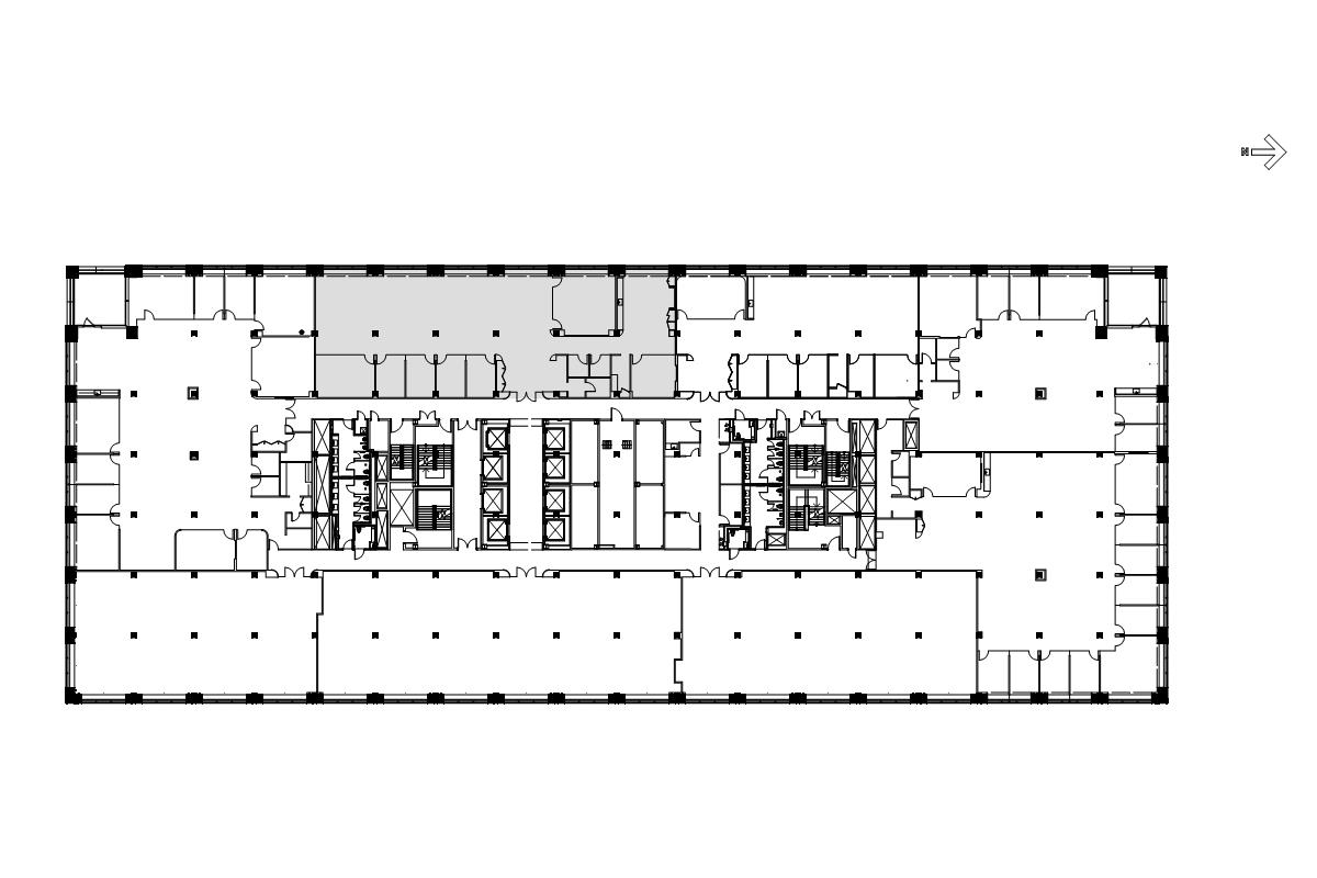
11th Floor
| ENTIRE 11TH FLOOR | 62,223 | Immediately | View | Download |
|
|
|
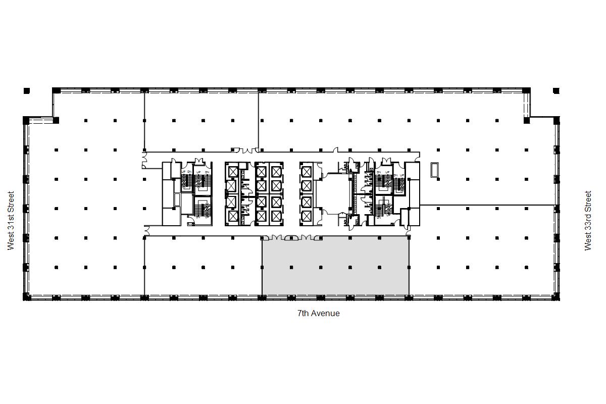
12th Floor
| PARTIAL 12TH FLOOR | 9,813 | Immediately | View | Download |
|
|
|
12th Floor
| PARTIAL 12TH FLOOR | 7,339 | Immediately | View | Download |
|
|
|
16th Floor
| ENTIRE 16TH FLOOR | 62,975 | Immediately | View | Download |
|
|
|
17th Floor
| PARTIAL 17TH FLOOR | 44,309 | Immediately | View | Download |
|
|
|
17th Floor
| PARTIAL 17TH FLOOR | 17,805 | Immediately | View | Download |
|
|
|
17th Floor
| PARTIAL 17TH FLOOR | 9,687 | Immediately | View | Download |
|
|
|
17th Floor
| PARTIAL 17TH FLOOR | 6,521 | Immediately | View | Download |
|
|
|
17th Floor
| PARTIAL 17TH FLOOR | 5,217 | Immediately | View | Download |
|
|
|
17th Floor
| PARTIAL 17TH FLOOR | 5,070 | Immediately | View | Download |
|
|
|
20th Floor
| ENTIRE 20TH FLOOR | 63,180 | Immediately | View | Download |
|
|
|
21st Floor
| ENTIRE 21ST FLOOR | 62,309 | Immediately | View | Download |
|
|
|
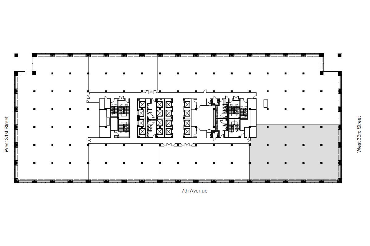
22nd Floor
| PARTIAL 22ND FLOOR | 9,602 | Immediately | View | Download |
|
|
|
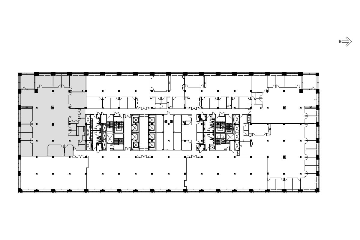
24th Floor
| PARTIAL 24TH FLOOR | 12,115 | Immediately | View | Download |
|
|
|
24th Floor
| PARTIAL 24TH FLOOR | 7,859 | Immediately | View | Download |
|

