595 MADISON AVENUE
| SPACE AVAILABLE | View Availabilities | |
|---|---|---|
| Availabilities | 13 | 1,441 — 8,359 |
| Total Building SF: | 322,000 | |
Specifications
LOCATION
The Building is located on the northeast corner of 57th Street and Madison Avenue.
YEAR BUILT
1929
ARCHITECT
Walker and Gillette
RENOVATION
In 2011 Vornado completed a capital improvement program which featured upgrading the landmarked lobby with custom-made lighting and relocating the lobby desk.
POINTS OF ENTRY
Main entrance on 57th Street
Entrance on Madison between 58th Street
BUILDING SIZE
Approximately 322,000 SF
FLOORS
40
FLOOR SIZES
Floors 03-19: 7,800-14,700 SF
Floors 20-40: 2,000-4,200 SF
FLOOR LOADS
120 lbs. per SF
CEILING HEIGHTS
11'-0" to 14'-0"
ELECTRICITY
8 watts per USF
EMERGENCY LIGHTING AND POWER
Emergency battery back up light fixtures
ELEVATORS
8 Passenger Cars
2 Freight Cars
HVAC
Monday through Friday 8:00 AM to 6:00 PM
SECURITY
24 hours, 7 days a week
SUSTAINABILITY
LEED Gold Certification
ENERGY STAR Label
BOMA 360 Certified
TELECOM
Verizon, RCN, Direct TV, Light Tower, Pilot Fiber, Everest Broadband
Tenant Profile
retail
- Berluti LLC
- Christofle
- Fendi
Contacts
Ryan Levy
Availability
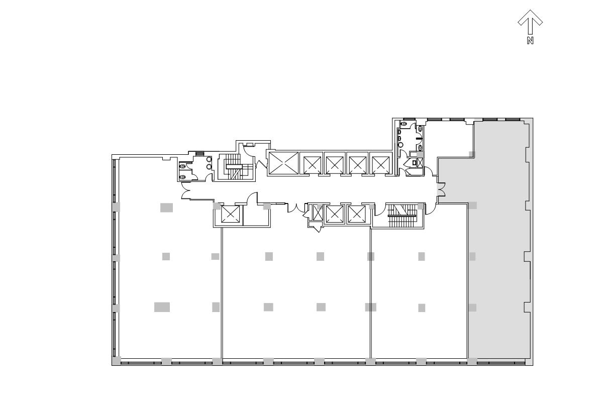
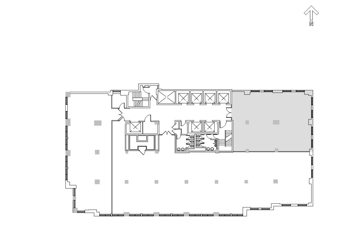
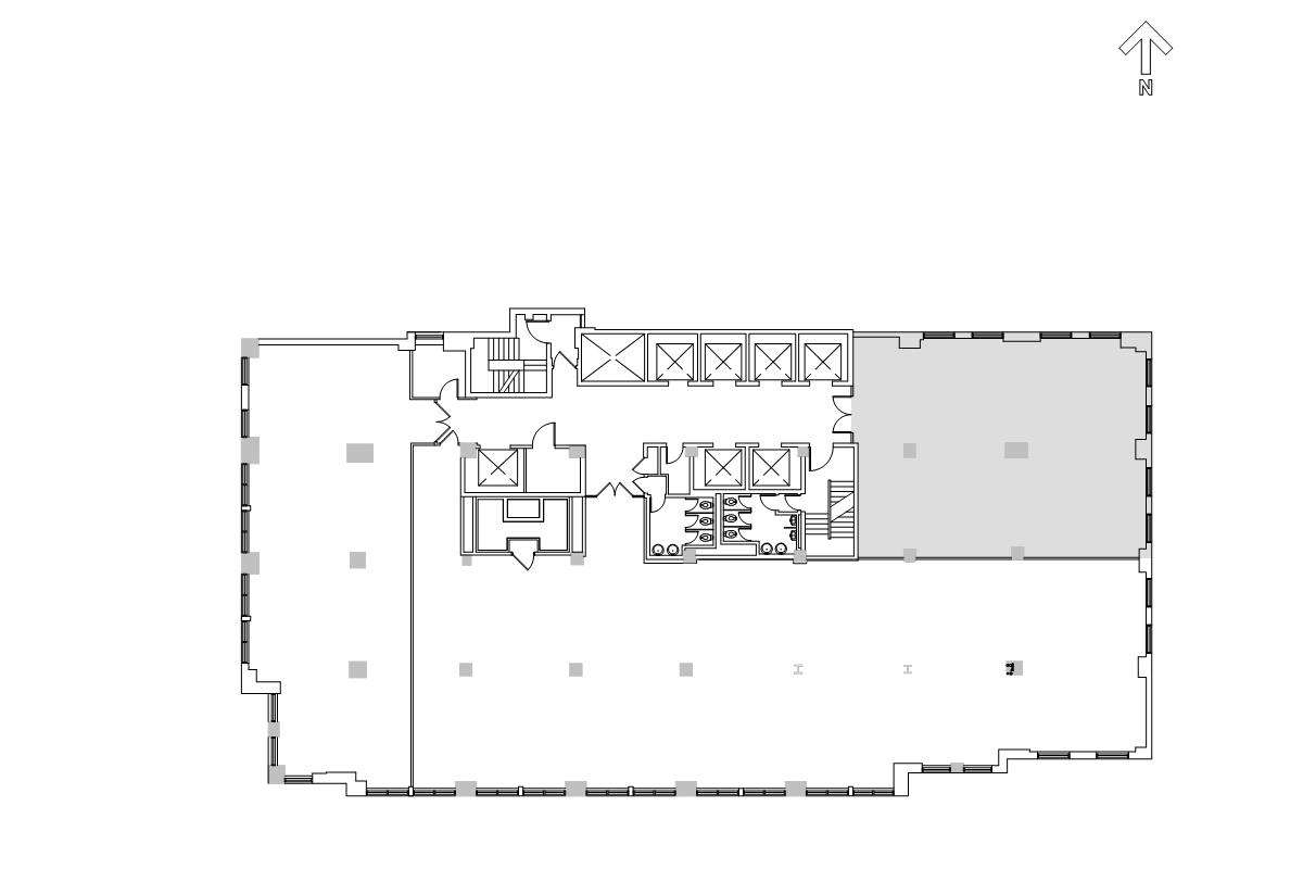
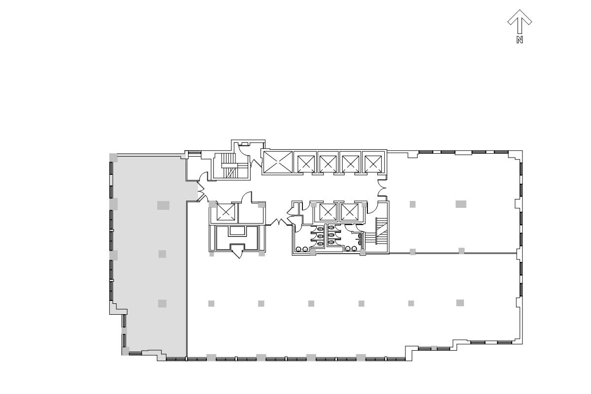
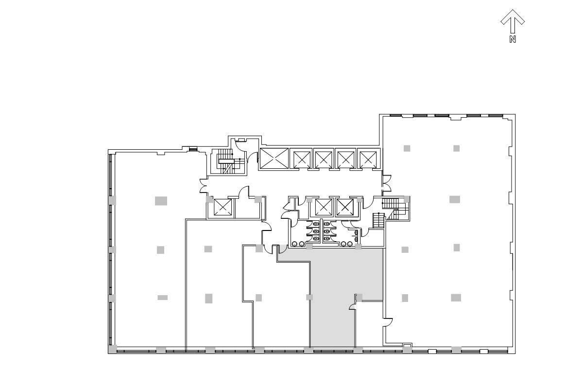
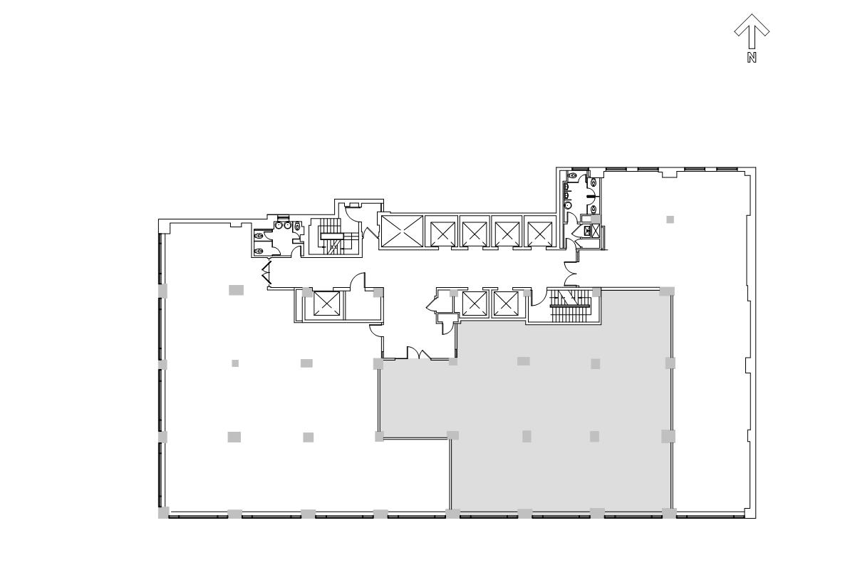
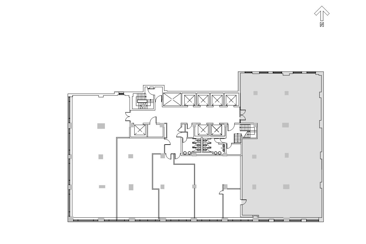
| Floor | Location | SQ FT | Available | Floor Plan | Search Packet ? | |
|---|---|---|---|---|---|---|
|
4th Floor
| PARTIAL 4TH FLOOR | 5,083 | Immediately | View | Download |
|
|
|
5th Floor
| PARTIAL 5TH FLOOR | 3,482 | Immediately | View | Download |
|
|
|
7th Floor
| PARTIAL 7TH FLOOR | 6,550 | Immediately | View | Download |
|
|
|
7th Floor
| PARTIAL 7TH FLOOR | 1,441 | Immediately | View | Download |
|
|
|
11th Floor
| PARTIAL 11TH FLOOR | 3,790 | Immediately | View | Download |
|
|
|
13th Floor
| PARTIAL 13TH FLOOR | 3,249 | Immediately | View | Download |
|
|
|
13th Floor
| PARTIAL 13TH FLOOR | 2,826 | 8-1-2026 | View | Download |
|
|
|
15th Floor
| PARTIAL 15TH FLOOR | 5,212 | 8-1-2026 | View | Download |
|
|
|
18th Floor
| ENTIRE 18TH FLOOR | 8,359 | Immediately | View | Download |
|
|
|
20th Floor
| ENTIRE 20TH FLOOR | 4,371 | Immediately | View | Download |
|
|
|
25th Floor
| PARTIAL 25TH FLOOR | 2,441 | Immediately | View | Download |
|
|
|
28th Floor
| ENTIRE 28TH FLOOR | 3,920 | 8-1-2026 | View | Download |
|
|
|
39th Floor
| ENTIRE 39TH FLOOR | 3,119 | Immediately | View | Download |
|


